Negozio in vendita

Leno, Via Camillo Benso Conte di Cavour
Informazioni in agenzia
10 locali 10 locali
300 Mq 300 Mq
5 bagni 5 bagni

Negozio in vendita

Leno, Via Camillo Benso Conte di Cavour

Descrizione annuncio

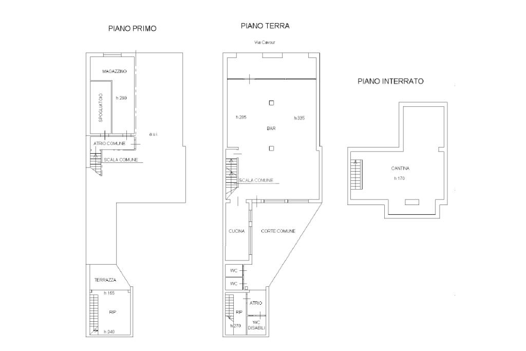
Proponiamo in locazione un complesso a destinazione commerciale e residenziale, sviluppato su quattro livelli, ubicato a Leno (Bs) precisamente in Via Cavour.

Locale commerciale al piano terra di circa 140 Mq:

Spazio open space, attualmente parzialmente arredato per attività di bar/somministrazione. L'immobile si presenta con due ampi vetrine fronti strada, che assicurano massima visibilità, perfette per attrarre passaggio pedonale e veicolare.
Completano il piano tre bagni esterni e una cantina al piano interrato da utilizzare ad uso deposito/magazzino. Saracinesche automatiche, impianti presenti, spazi personalizzabili in base all’attività.

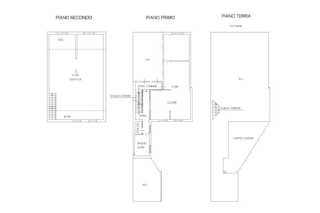
Appartamento al piano primo di circa 160 mq di cui 40 mq ad uso commerciale:

Abitazione spaziosa composta da 7 vani, tra cui zona giorno e cucina con camino, camere da letto, servizio igienico e una soffitta al secondo piano. La scala interna collega le due unità, con un unico ingresso.

L'immobile si trova in zona ben servita, con forte passaggio, vicinanze scuole, uffici, mezzi pubblici e attività commerciali. Ampia possibilità di parcheggio in zona.

Soluzione ideale per:

-Attività commerciale con abitazione soprastante

-Studio professionale con uffici e reception

-Investimento da mettere a reddito (possibilità di affittare separatamente i due livelli)

-Ristorazione, servizi al pubblico, showroom, centro estetico o poliambulatorio

Mostra tutto

Nelle vicinanze

Trasporto pubblico Trasporto pubblico
Piazza - sud
Piazza - sud
90 m
Italmark - sud
Italmark - sud
390 m
Ricariche auto elettriche Ricariche auto elettriche
GardaUno Leno
150 m
Scuole Scuole
Istituto di istruzione superiore Vincenzo Capirola
290 m
Scuola Secondaria di Primo Grado Carlo Dossi
500 m
Scuola primaria
520 m
Farmacia Farmacia
Farmacia Bravi
70 m
Farmacia Sartirana
160 m
Ospedali Ospedali
Ospedale di Leno
240 m
Supermercati Supermercati
Italmark
390 m
Prix Quality
480 m
Simply Sma
850 m
Lidl
1,1 Km
Eurospin
1,2 Km
Negozi Negozi
Forneria Panina
50 m
Forneria Bonazzoli
120 m
Les Amis
170 m
Dal Fornaio
210 m
Prime vanità
210 m
Bar Bar
Musikafè
0 m
Caffè Leon Rampante
40 m
Bar Impero
60 m
Bar Centrale
70 m
Bar Metiu Caffè
100 m
Ristoranti Ristoranti
Osteria degli amici
150 m
L'Ocanda
270 m
MA-TI
430 m
De Jordano
460 m
Primavera
760 m
Mostra tutto

Caratteristiche

Rif.:
61126763
Piano:
1 di 4 (Piano terra)
Posti auto:
10
Condizionamento:
Autonomo
Ascensore:
No
Riscaldamento:
Autonomo
Mostra tutto
Prezzo Prezzo
Informazioni in agenzia
Spese annue Spese annue
€ 0
Anche in affitto a
Proponi il tuo prezzoProponi il tuo prezzo

Altre caratteristiche

Descrizione dei locali
Bagno antibagno

Classe Energetica

Questo immobile è esente da classe energetica
Anno di costruzione:
1960
Riscaldamento:
Autonomo
Tipo impianto:
Ad aria
Tipo alimentazione:
Aria

Ti interessa visionare l'immobile?

Fissa un appuntamento  Fissa un appuntamento

Richiedi informazioni

Clicca su Leggi per aprire l'informativa
* Questi campi sono obbligatori
Affiliato
Studio Industriale Srl
Via Leno, 2 25025 Manerbio (BS)

Il nostro staff


  • Francesca Lanzini
    Affiliata

  • Claudio Valecci
    Affiliato

  • Omar Kellici
    Collaboratore

  • Nicola Ollargiu
    Collaboratore

  • Michela Scolari
    Coordinatrice
Via Leno, 2 25025 Manerbio (BS)
Zona: Manerbio - Leno - Ghedi - Verolanuova - Bassa Bresciana
Mostra su mappa
Orari: dal lunedì al venerdì dalle 8:30 alle 12:30 e dalle 14:30 alle 19:30;sabato dalle 8:30 alle 12:30 - sabato pomeriggio e domenica su appuntamento.
Affiliato
Studio Industriale Srl
Via Leno, 2 25025 Manerbio (BS)

2026 Tecnocasa Franchising S.p.A. - P. IVA 08365160152 - Via Monte Bianco 60/A 20089 Rozzano (MI). Ogni agenzia ha un proprio titolare ed è autonoma. Privacy policy | Policy utilizzo | Cookie policy