Capannone in vendita

Verolanuova, Via Circonvallazione
€ 415.000
7 locali 7 locali
600 Mq 600 Mq
3 bagni 3 bagni

Capannone in vendita

Verolanuova, Via Circonvallazione

Descrizione annuncio

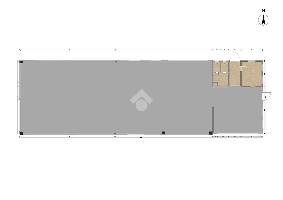
Proponiamo in vendita capannone industriale sito nel comune di Verolanuova, più precisamente in Via Circonvallazione.

L’immobile, recintato, si estende su una superficie di circa 600 mq ed è così caratterizzato:

- Altezza 4,5 m

- Un’unica campata

- 1 accesso carraio

- 3 portoni di altezza 3,70 m circa

- 7 locali cablati

- 3 servizi igienici con annessi doccia e spogliatoio

- Aria compressa

- Portineria all’ingresso

- Presente un balcone

- Completo di impianto di allarme e videosorveglianza

- Completo di impianto di illuminazione ed elettrico

- Completo di impianto di riscaldamento ed aria condizionata

Il capannone ha una superficie complessiva di 600 mq, di cui 50 mq destinati a zona uffici. Al primo piano è presente un appartamento di 120 mq. Inoltre, 100 mq situati nella parte anteriore del capannone sono adibiti a uso commerciale.

La zona industriale di Verolanuova, situata nella provincia di Brescia, è un polo produttivo consolidato. La zona è ben collegata grazie alla sua vicinanza alla strada statale Brescia-Cremona e alla strada statale Quinzanese, facilitando l'accesso alle principali arterie di comunicazione. Oggi, Verolanuova rappresenta un punto di riferimento per l'industria e la logistica nella Bassa Bresciana, con un mix di aziende operanti nei settori tecnologico, meccanico e manifatturiero.

Mostra tutto

Nelle vicinanze

Trasporto pubblico Trasporto pubblico
Verolanuova
Verolanuova
870 m
Ricariche auto elettriche Ricariche auto elettriche
CONAD Verolanuova | EnelX
710 m
GardaUno Comune di Verolanuova
1,1 Km
Verolavecchia Piazza Caccia | EnelX
2,7 Km
Scuole Scuole
Scuola ITC Mazzolari
680 m
Scuola Elementare
700 m
Scuola Secondaria di Primo Grado Ercole De Gaspari
930 m
Supermercati Supermercati
Italmark
400 m
Conad
720 m
Lidl
1,6 Km
Penny Market
1,9 Km
Negozi Negozi
Il Forno
1,1 Km
Bar Bar
Bar Giardino
630 m
La Bottega del Caffè
1,0 Km
Oasi Cafè
1,2 Km
Ristoranti Ristoranti
al Posticino
920 m
La Vecchia Filanda
1,1 Km
Buona Pizza
1,7 Km
Mostra tutto

Caratteristiche

Rif.:
61063440
Piano:
Terra di 3
Totale piani:
3
Posti auto:
10
Balconi:
1
Condizionamento:
Autonomo
Mostra tutto
Prezzo Prezzo
€ 415.000
Rata mutuo Rata mutuo
€ 1.926 / mese
Proponi il tuo prezzoProponi il tuo prezzo

Altre caratteristiche

Descrizione dei locali
Bagno Con Finestra

Classe Energetica

Questo immobile è esente da classe energetica
Anno di costruzione:
1990
Riscaldamento:
Autonomo
Tipo impianto:
Ad aria
Tipo alimentazione:
Aria

Ti interessa visionare l'immobile?

Fissa un appuntamento  Fissa un appuntamento

Richiedi informazioni

Clicca su Leggi per aprire l'informativa
* Questi campi sono obbligatori

Calcola il tuo mutuo

Semplice e senza impegno
Anticipo

( % )
Mutuo

( % )

pochi semplici passi

inserisci i tuoi dati
Questionario completato
Grazie per aver richiesto un appuntamento senza impegno con un nostro Consulente del Credito e Assicurativo.

Hai inserito correttamente tutti i dati necessari e a breve riceverai una e-mail con un link da convalidare per inviare i tuoi dati.
Affiliato
Studio Industriale Srl
Via Leno, 2 25025 Manerbio (BS)

Il nostro staff


  • Francesca Lanzini
    Affiliata

  • Claudio Valecci
    Affiliato

  • Daniel Bambini
    Collaboratore

  • Omar Kellici
    Collaboratore

  • Michela Scolari
    Coordinatrice
Via Leno, 2 25025 Manerbio (BS)
Zona: Manerbio - Leno - Ghedi - Verolanuova - Bassa Bresciana
Mostra su mappa
Orari: dal lunedì al venerdì dalle 8:30 alle 12:30 e dalle 14:30 alle 19:30;sabato dalle 8:30 alle 12:30 - sabato pomeriggio e domenica su appuntamento.
Affiliato
Studio Industriale Srl
Via Leno, 2 25025 Manerbio (BS)

2026 Tecnocasa Franchising S.p.A. - P. IVA 08365160152 - Via Monte Bianco 60/A 20089 Rozzano (MI). Ogni agenzia ha un proprio titolare ed è autonoma. Privacy policy | Policy utilizzo | Cookie policy