Negozio in vendita

Verolanuova, Via Luigi Semenza
2 locali 2 locali
70 Mq 70 Mq
1 bagno 1 bagno

Negozio in vendita

Verolanuova, Via Luigi Semenza

Descrizione annuncio

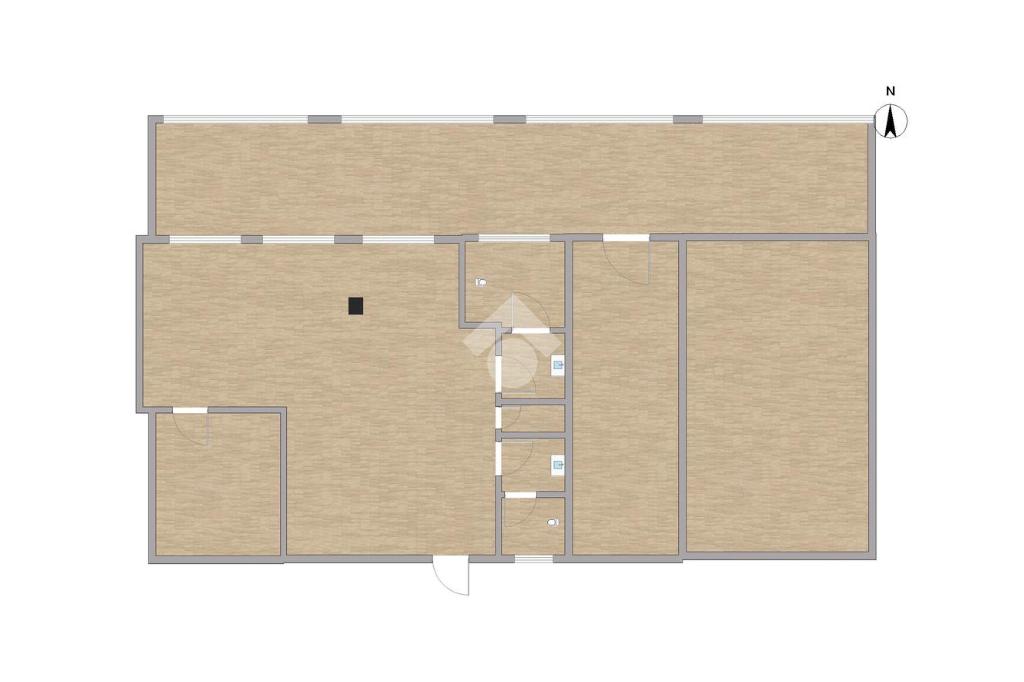
Proponiamo in vendita locale commerciale sito nel comune di Verolanuova, più precisamente in Via Luigi Semenza

L’immobile, che si estende su una superficie open space di circa 70 mq, è così caratterizzato:

- Altezza 5 m

- 3 vetrine

- 2 locali cablati con porta blindata

- 1 servizio igienico a norma di legge con annesso spogliatoio

- Presente canna fumaria e aspirazione fumi

- Completo di doppio ingresso e controllo accessi

- Presente uscita di emergenza

- Completo di impianto di illuminazione

- Presenti alcuni parcheggi lungo la via ed un garage privato

- Completo di impianto di riscaldamento ed aria condizionata

Le spese condominiali per questo immobile ammontano a circa € 240 annui

LIBERO SUBITO

Verola, situato in provincia di Brescia, è un piccolo comune che, pur essendo caratterizzato da un'atmosfera tranquilla e rurale, ospita una zona commerciale che serve come punto di riferimento per la popolazione locale. La zona commerciale di Verola è ben collegata con le arterie principali del comune e offre una varietà di negozi, attività artigianali e piccole imprese. Qui si possono trovare servizi quotidiani, tra cui alimentari, bar, ristoranti e alcune realtà legate al settore del fai-da-te e dell'edilizia. Nonostante la dimensione contenuta, la zona commerciale è un importante centro di socializzazione e scambio economico per i residenti e per chi proviene dai comuni limitrofi.

Mostra tutto

Nelle vicinanze

Trasporto pubblico Trasporto pubblico
Verolanuova
Verolanuova
800 m
Ricariche auto elettriche Ricariche auto elettriche
GardaUno Comune di Verolanuova
90 m
CONAD Verolanuova | EnelX
480 m
Verolavecchia Piazza Caccia | EnelX
1,9 Km
Scuole Scuole
Scuola Secondaria di Primo Grado Ercole De Gaspari
230 m
Scuola Elementare
560 m
Scuola ITC Mazzolari
630 m
Supermercati Supermercati
Conad
480 m
Lidl
480 m
Penny Market
830 m
Italmark
910 m
Negozi Negozi
Il Forno
470 m
Bar Bar
La Bottega del Caffè
190 m
Oasi Cafè
220 m
Bar Giardino
710 m
Ristoranti Ristoranti
La Vecchia Filanda
80 m
al Posticino
560 m
Buona Pizza
660 m
Mostra tutto

Caratteristiche

Rif.:
61028635
Piano:
Terra di 1
Totale piani:
1
Box:
1
Posti auto:
10
Condizionamento:
Autonomo
Mostra tutto
Prezzo Prezzo
€ 70.000
Rata mutuo Rata mutuo
€ 332 / mese
Anche in affitto a
Proponi il tuo prezzoProponi il tuo prezzo

Classe Energetica

Questo immobile è esente da classe energetica
Anno di costruzione:
1990
Riscaldamento:
Autonomo
Tipo impianto:
Ad aria
Tipo alimentazione:
Aria

Ti interessa visionare l'immobile?

Fissa un appuntamento  Fissa un appuntamento

Richiedi informazioni

Clicca su Leggi per aprire l'informativa
* Questi campi sono obbligatori

Calcola il tuo mutuo

Semplice e senza impegno
Anticipo

( % )
Mutuo

( % )

pochi semplici passi

inserisci i tuoi dati
Questionario completato
Grazie per aver richiesto un appuntamento senza impegno con un nostro Consulente del Credito e Assicurativo.

Hai inserito correttamente tutti i dati necessari e a breve riceverai una e-mail con un link da convalidare per inviare i tuoi dati.
Affiliato
Studio Industriale Srl
Via Leno, 2 25025 Manerbio (BS)

Il nostro staff


  • Francesca Lanzini
    Affiliata

  • Claudio Valecci
    Affiliato

  • Omar Kellici
    Collaboratore

  • Nicola Ollargiu
    Collaboratore

  • Michela Scolari
    Coordinatrice
Via Leno, 2 25025 Manerbio (BS)
Zona: Manerbio - Leno - Ghedi - Verolanuova - Bassa Bresciana
Mostra su mappa
Orari: dal lunedì al venerdì dalle 8:30 alle 12:30 e dalle 14:30 alle 19:30;sabato dalle 8:30 alle 12:30 - sabato pomeriggio e domenica su appuntamento.
Affiliato
Studio Industriale Srl
Via Leno, 2 25025 Manerbio (BS)

2026 Tecnocasa Franchising S.p.A. - P. IVA 08365160152 - Via Monte Bianco 60/A 20089 Rozzano (MI). Ogni agenzia ha un proprio titolare ed è autonoma. Privacy policy | Policy utilizzo | Cookie policy